西武池袋線「保谷」駅 徒歩15分
◆レンズが手掛けるInfiar◆
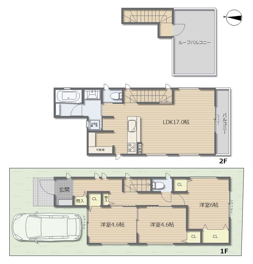
用途色々!ルーフバルコニーでイベントUP!
基本情報
物件概要
サブキャッチコピー
練馬区西大泉に限定1邸のこだわりの住まいが誕生します。
弊社の営業マンの知恵と経験も反映した、
常識にとらわれないクリエイティブな分譲住宅シリーズです。
・…━━*☆*物件POINT*☆*━━…・
◇1坪サイズだからこそ叶う、広さと機能を両立した快適な浴室空間
◇食品から日用品まで、すっきり収納できる大型パントリー
◇水回りを集約したプランで、毎日の家事時間をぐっと短縮
◇足元からじんわり暖かい、快適な床暖房で冬の暮らしも心地よく
◇収納力のある設計で、毎日の生活空間はいつでもすっきり快適
◇公園まで徒歩1分、緑あふれる街で子どもたちの笑顔が広がる暮らし
ポイント
◇閑静な住宅地でファミリー層に人気のエリア
×保育園、幼稚園、小学校が徒歩10分圏内で通園、通学も安心
◇空と風を感じながらゆったりとくつろぐルーフバルコニー
×明るい陽光が差し込み家族みんなが自然と集まる2階LDK
光と風に包まれ、穏やかな時間が流れる西大泉5丁目の新築戸建て誕生!
※「お取り扱い不動産会社」情報と「マップ情報」は、「メッセージする」または「お問い合せ」または「申込」をしていただくことによって閲覧可能となっております。
お取扱い不動産会社

| 会社名 | 株式会社レンズ |
|---|---|
| 宅建業免許番号 | 東京都知事3第94762号 |
| 所在地 | 東京都練馬区 |
物件へのアクセス
ログイン後に閲覧可能になります
新座市栄5丁目 3,950万円
インフィーア Vol. 76 中野区南台3丁目 7,590万円
北区滝野川6丁目 建築条件付き売地 5,690万
川口市朝日5丁目 中古戸建て 3,680万円
インフィーア Vol. 72 練馬区西大泉6丁目 4,990万円
インフィーア Vol. 71 渋谷区幡ヶ谷3丁目 7,990万円